
Rezidencia SKYONE
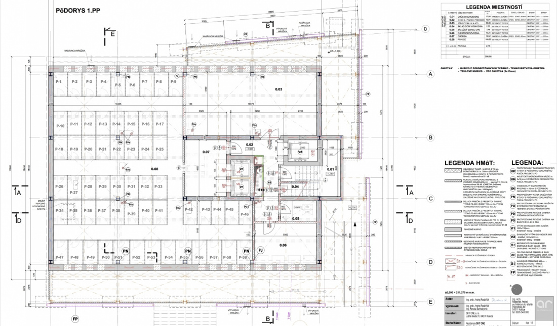
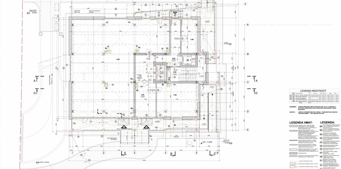
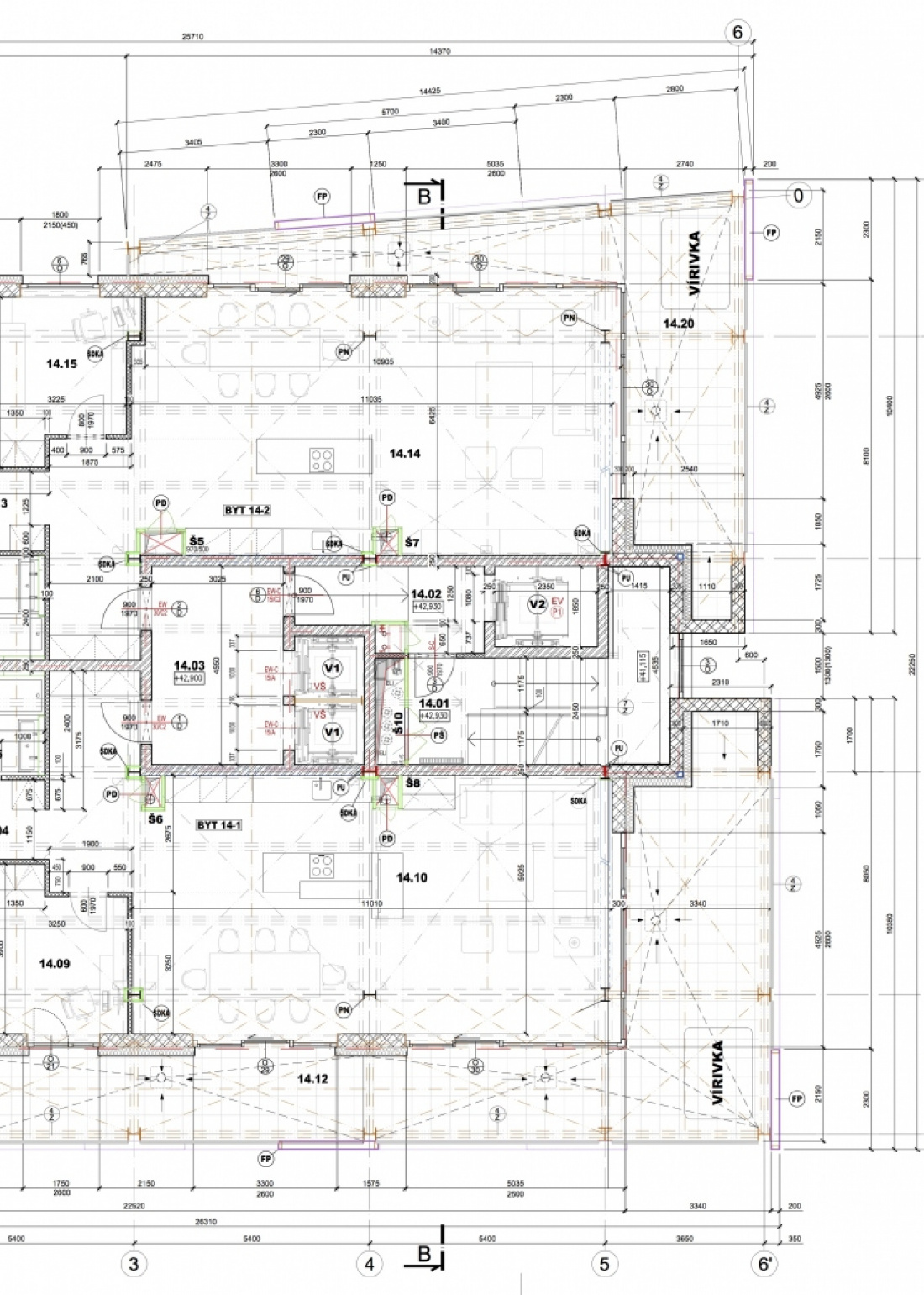
Jedná sa o rekonštrukciu a prístavbu jestvujúceho 14 podlažného bývalého administratívneho objektu / riaditeľstvo daňového úradu/ na Garbiarskej ulici č.1 a o jeho zmenu účelu využitia na bytový dom z polyfunkciou.
Architektonické riešenie je podmienené snahou o architektonickým výrazom akcentované riešenie bytového domu – rezidencie. Nevyhnutnou sa javí navrhovaná dostavba terás. Premena značnej časti spevnených plôch a komunikácii na zeleň. Súdobý design budovy tvorý architektonické riešenie dostavovaných terás, ktoré svojím tvarom a farebným kontrastom voči pozadiu – pôvodnej hmote objektu vytvárajú dynamický architektonický prvok.
V objekte je navrhovaných 58 bytov.
- Kategória
Rekonštrukcia - Lokácia
Garbiarska ul. KOšice - Klient
Súkromný investor



























